Beschrijving
Altijd al de wens gehad om vrijstaand te wonen? Hier is uw kans! Deze degelijk gebouwde woning biedt alle kansen om heerlijk vrijstaand te wonen, met vrij zicht aan de voorzijde, parkeren op eigen terrein en ook nog een vrijstaande garage erbij!
Zeer centraal gelegen, dichtbij zowel de natuur als alle overige voorzieningen in Alverna, Wijchen en Nijmegen. Het prachtige wandelgebied “de Berendonck” en ook de “Hatertse Vennen” liggen letterlijk “om de hoek”.
De woning heeft een royale leefruimte op de begane grond en beschikt naast de L-vormige woonkamer over een aangebouwde leefkeuken en royale bijkeuken, volop mogelijkheden dus!
Op loopafstand zijn er speelgelegenheden, de buurtwinkel en een lagere school. Ook de middelbare school is slechts een paar minuten fietsen. Daarnaast is deze woning ook nog gelegen vlakbij diverse uitvalswegen, alle voorzieningen van het gezellige centrum van Wijchen met leuke winkeltjes en diverse horeca-gelegenheden. Ook diverse sportvelden liggen vlakbij en natuurlijk ook de stad Nijmegen, deze ligt slechts enkele auto-minuten van deze woning verwijderd.
De woning heeft altijd gediend als familiehuis en met wat modernisering en vernieuwing zal het weer een heerlijke nieuwe leefplek voor een stel of gezin zijn!
Nieuwsgierig geworden? Maak dan snel een afspraak voor een vrijblijvende bezichtiging!
Inhoud 537 M3, Perceel 386 M2. Woonoppervlak: 122,3 M2 (exclusief zolder) Overige inpandige ruimte 22,6 M2 Externe bergruimte: 27,2 M2.Bouwjaar 1968.
Indeling
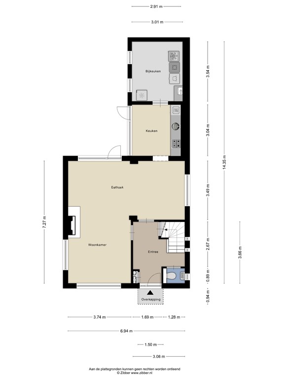
Begane grond: entree, meterkast, trapkast met veel schapruimte voor de provisie. Toilet met fonteintje en trapopgang naar de eerste verdieping. Royale L-vormige woonkamer met veel lichtinval en vrij uitzicht aan de voorzijde. Vanuit de woonkamer komt u in de keuken, wederom is daar veel daglicht door de grote raampartij en vanuit deze leefkeuken heeft u toegang tot de achtertuin en tot de bijkeuken. De keuken is uitgerust met diverse inbouwapparatuur, maar in de bijkeuken is ook royaal plaats voor aanvullende apparatuur zoals bijvoorbeeld een extra koelkast of diepvries. Ook staan hier de wasmachine en de droger en de CV-opstelling.
Eerste verdieping
Overloop met vlizotrap naar de zolder verdieping. Drie ruime slaapkamers, waarvan 2 met inbouwkast. De (gedateerde) badkamer is aan de voorzijde gelegen en heeft een ligbad, toilet en een wastafel met spiegel.
Tweede verdieping
Bereikbaar middels een vlizotrap. Voorzolder met veel bergruimte. Multi-functionele zolderkamer met daglicht en veel bergruimte achter de schotten. Uitbreiding met een dakkapel en een vaste toegangstrap zal aan deze verdieping zeer veel toegevoegde waarde kunnen geven.
Tuin
De achtertuin is beschut gelegen en biedt zeer veel privacy. Er is de hele dag een plekje in de zon of schaduw te vinden.
Bijzonderheden
• Royaal perceel
• Vrijstaande garage
• Parkeren op eigen terrein
• CV ketel vervangen in 2016 (Nefit).
• Zeer centraal gelegen, dichtbij natuur, voorzieningen en scholen
• Kindvriendelijke en rustige ligging
• Vrij uitzicht aan de voorzijde en veel privacy in de achtertuin
Plattegronden
181922125_1602663_groen_begane_grond_first_design_20260204_cc8d6f.jpg
181922125_1602663_groen_eerste_verdiepi_first_design_20260204_4e6a98.jpg
181922125_1602663_groen_garage_first_design_20260204_0ee573.jpg
181922125_1602663_groen_tweede_verdiepi_first_design_20260204_d0c37e.jpg