Beschrijving
Naast ruim 100 m2 woonoppervlak biedt deze woning een enorme verrassing : er is extra 100 M2 leef/hobbyruimte in het souterrain (wat niet bij het woonoppervlak is meegeteld)! Op zoek naar een betaalbare, goed onderhouden hoekwoning op een royaal perceel in een geliefde wijk? Dan is hier uw kans! Alle kozijnen zijn vervangen door aluminium kozijnen, voorzien van screens en HR ++ beglazing.
Er is zelfs een uitgebreide bouwkundige keuring aanwezig (2025). De woning beschikt over een grote garage en ongekend veel extra ruimte in het souterrain…. Dus voor hobby’s of heel veel opslag, chill-ruimte, een bar- of biljart-ruimte, u kunt het zo gek niet verzinnen of er is hier ruimte voor!
Daarnaast meet dit perceel maar liefst 400 M2, dus veel parkeerplaats op eigen terrein én een ruime, diepe achtertuin op het zuidwesten.
Deze fijne gezinswoning heeft 3 slaapkamers, een aparte keuken, een lange oprit en een royale garage, die van binnenuit bereikbaar is via de kelder.
Deze hoekwoning woning ligt vlakbij het mooie centrum van Groesbeek met al haar faciliteiten. Op loopafstand zijn er speelgelegenheden en een lagere school. De Molen en de Jumbo liggen praktisch “ om de hoek”…
Groesbeek heeft alles te bieden midden in een prachtige groene omgeving, maar ook Nijmegen is slechts 15 auto-minuten hier vandaan.
Met wat aanpassingen en modernisering zal deze woning weer een heerlijk familie (t)huis worden!
Nieuwsgierig geworden? Maak snel een afspraak voor een vrijblijvende bezichtiging!
Inhoud 682 M3, Perceel 400 M2. Woonoppervlak: 100,3 M2 Overige inpandige ruimte 92,3 M2. Bouwjaar 1963.
Indeling
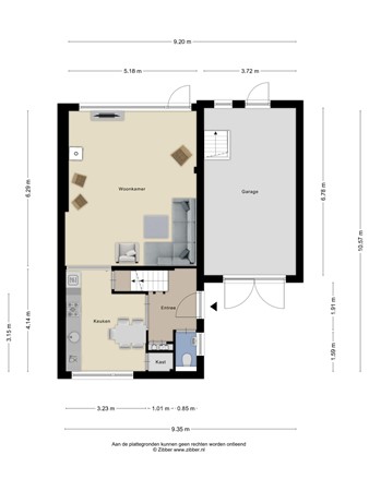
Begane grond: entree, meterkast, toilet met fonteintje en trapopgang near de eerste verdieping. Woonkamer met houtkachel, en een mooie en -suite deur naar de keuken. Vanuit de keuken is er toegang tot het zeer royale souterrain. De keuken is gelegen aan de voorzijde van de woning en voorzien van een apothekerskast en diverse inbouw apparatuur waaronder een 4-pits gasfornuis, oven, koelkast, vaatwasser en een RVS afzuigkap.
Vanuit de woonkamer is de sfeervolle, diepe achtertuin bereikbaar.
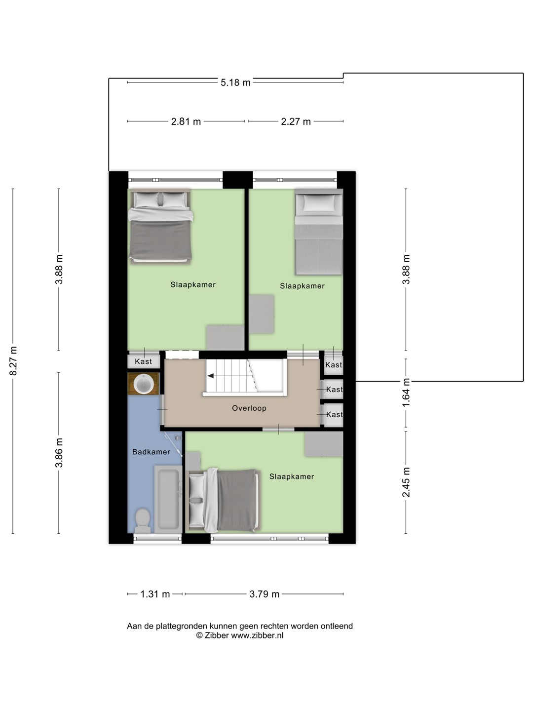
Eerste verdieping
Overloop met vaste inbouwkasten. Drie ruime slaapkamers, waarvan 1 met airco. Complete badkamer met toilet, wastafelmeubel, douche en ligbad.
Overige verdiepingen
Souterrain bereikbaar vanuit zowel de garage als de keuken (2 trappen). Drie grote ruimtes, voor vele doeleinden geschikt. In een van de ruimten hangt de CV-ketel. Aan de voorzijde ligt een grote wasruimte met de aansluitingen voor de wasmachine en de droger.
Tuin
Diepe voor- en tevens een diepe achtertuin. Royale oprit geschikt voor meerdere auto's. Garage bereikbaar vanuit zowel de voor- als de achtertuin. Aparte houten berging in de achtertuin, deze is zonnig gelegen op het zuidwesten.
Bijzonderheden
• 3 grote ruimtes in het souterrain
• Royaal perceel
• Diepe achtertuin (18 meter) op het zuidwesten
• Spouw is na-geïsoleerd
• CV ketel vervangen in 2021 (Nefit Pro-line)
• Plat dak is vernieuwd en opnieuw geïsoleerd in 2023
• Alle kozijnen vervangen door aluminium kozijnen, voorzien van screens en HR ++ beglazing
• Bouwkundige keuring aanwezig (2025)
• Veel parkeerruimte op eigen terrein
• Centraal gelegen op loopafstand van voorzieningen
• Dakopbouw voor een tweede verdieping behoort tot de mogelijkheden
• Kindvriendelijke en rustige ligging